高爐煤氣OXYMAT6氧含量分析儀
- 品牌:SIEMENS
- 型號:OXYMAT6
- 廠家:西門子
一、 我國高爐冶金行業的現狀
鋼鐵行業在我國的國民經濟中,占有舉足輕重的地位。作為全球制造業中心,中國的工業化發展的潛力很大,經濟的持續增長,會為鋼鐵行業的發展提供動力。而今,中國的鋼鐵行業正經歷著兼并重組,淘汰落后產能,優化產業布局,發展循環經濟,實現節能減排的過程。鋼鐵行業健康穩步的發展,關系重大。
鋼鐵的冶煉過程實質上是原材料、燃料和成品的流轉過程,在流轉中伴隨著大量氣體產生,而在線檢測分析這些過程氣體是冶金工業生產工藝優化控制、安全和環保監控必不可少的關鍵技術之一。西門子公司是中國鋼鐵工業的合作伙伴,一直致力于推動中國鋼鐵工業自動化水平的不斷提高。西門子分析儀器能夠應用于鋼鐵行業中的煉鋼、煉鐵及燒結等各個裝置,對降低能源消耗、保證生產安全等起著十分重要的作用,還對鋼鐵企業增大產能,提高產品質量有積極的效果。
二、 高爐煤氣為什么要安裝OXYMAT6氧含量分析儀
高爐冶煉是當今煉鐵工藝中最主要的煉鐵方法。時事檢測出高爐煤氣中各組分的含量可以及時反應出爐內狀況,指導高爐的操作,從而保證了高爐穩定順利的運行,同時為提高產品質量、產量起著十分重要的作用。
西門子分析儀可以在線檢測高爐煤氣中N2、CO、CO2、H2的含量,每一個周期自動向高爐控制中心提供一組準確、可靠的高爐煤氣中各組份的百分含量。通過計算CO2/(CO+CO2)的比值來判斷煤氣利用率,控制焦煤比,一般在焦炭負荷不變的情況下比價降低,說明煤氣利用率降低,預示著高爐轉涼;通過觀察H2的含量判斷風口中小套高壓水及爐身冷卻壁常壓水是否漏水,如果H2值增加,說明存在漏水,為防止爆炸,需盡快解決;通過對N2含量的檢測,可推測出高爐的泄漏率。一般采樣點選在重力除塵器后,布袋除塵前的煤氣水平管道上。由于西門子分析儀擁有諸多技術優勢,提高了測量的響應時間,保證了測量數據的可靠性。還有,分析儀表可以幫助測量熱風爐出口的O2含量,優化高爐燃燒,提高產品質量。
另外,為了提高煉鐵的經濟性,降低成本,國內許多高爐采用噴煙煤或參噴煙煤完成煉鐵工藝。由于煙煤揮發性和可燃性比較高,在磨煤機磨煤時,進入過多的氧氣易引起爆炸,所以在磨煤機前的熱風管道上以及磨煤機之后的布袋除塵器之后都要檢測氧的含量,若氧含量過高,則要報警。在煤粉倉中,還要檢測CO的含量,當CO含量過高時,需要及時沖氮,防止事故發生。
在高爐噴煤的應用中,西門子的OXYMAT 6磁壓氧分析儀都有很好的應用。相比傳統的分析儀有他本身自有的優勢。首先,OXYMAT 6磁壓氧分析儀采用測量順磁壓力變化的方法來測量氣體中的氧濃度,直接檢測分析出工藝管道內的氧含量濃度。其次,OXYMAT 6磁壓氧分析儀維護起來非常簡便,降低了維護費用。最后,OXYMAT 6磁壓氧分析儀的響應時間最低可達1.5秒,為安全保護系統及時提供數據,可以勝任關鍵點的測量。例如:在一些測量點上,比如磨煤機出口,煤粉倉等,由于含塵量非常大,這個時候只能采用抽取式OXYMAT 6磁壓氧分析儀來測量。
在鋼鐵行業中,西門子憑借其齊全的產品線,可以提供完全的解決方案,如下圖1所示是西門子分析儀在高爐煉鐵工藝中的應用。

三、OXYMAT6型氧分析儀產品
1、OXYMAT6型氧分析儀產品介紹
西門子OXYMAT6型氧分析儀采用測量順磁壓力變化的方法來測量氣體中的氧濃度。OXYMAT6系列氧分析儀先進的電子元件、易操作性和可適用于各種測量任務的物理元件,使它具有高可靠性和測量質量,滿足各種應用需求,是最常用的分析儀表。OXYMAT 6分析儀,利用順磁原理對氧進行測量。由此,可保證理想的線性度,在一臺分析儀中實現從最小測量范圍0 - 0.5%(檢測極限50 ppm)到0 - 100%,甚至是99.5 - 100%范圍內任意設定測量范圍。由于檢測器中的傳感器不與樣氣接觸,因此,可測量腐蝕性氣體。在測量氣路中也采用耐腐蝕材料。對于防護等級為IP 65和連接了吹掃氣的現場型儀器,由于使用電子器件和分析部件相隔離的設計模式,即使在苛刻的工況條件下,亦可保證較長的使用壽命。現場分析儀還有其它基本型號,可以進行分析部件的加熱,用于測量低沸點成分或在危險場合使用。
2、OXYMAT6型氧分析儀特性
u 順磁壓力變化原理
ü 測量量程小 (0-0.5% 或 99.5-100% O2)
ü 完全線性
u 檢測單元與樣氣無接觸
ü 可用于測量腐蝕性氣體
ü 使用壽命長
u 通過選擇適合的參比氣體(空氣或氧)可以使量程不從零開始
u 開放的接口結構 (RS 485, RS 232, PROFIBUS)
u 用于維護和服務信息的SIPROM GA 網絡 ( 可選)
u 電氣部分和物理特性:氣密隔離,可吹掃,IP65,惡劣環境中也有很長的使用壽命
u 帶加熱型 ( 可選),也可在低溫下有冷凝氣體的情況下使用
u 防爆等級 EEx(p),用于 1 區和 2 區,符合 ATEX 2G 和 ATEX 3G
3、OXYMAT6型氧分析儀應用
u 控制焚燒裝置中的鍋爐
u 與安全相關的領域
u 作為排放監測中的參考變量 ( 根據德國 TA-Luft 氣體排放標準)
u 汽車工業 ( 發動機性能檢測系統)
u 報警裝置
u 化工廠
u 高純氣體的品質檢驗
u 環境保護
u 質量監測
u 可如經過認證的氣體報警設備(DMT) 那樣監視惰性氣體
u 防爆型可在危險區域中使用,用于分析易燃和非易燃氣體或蒸汽
2 特殊應用:除上述標準應用之外,根據客戶的要求,對于需考慮氣路材質和樣品室 材質的特殊應用,該分析儀也可勝任。
4、OXYMAT6型氧分析儀設計
(1)19" 機架式
l 4 HU,可安裝在:
ü 擺動框架上
ü 機柜中,可帶或不帶滑軌
l 如要維修,前面面板能被卸下( 連接便攜式電腦)
l 內部氣路 :FKM (Viton) 軟管,或鈦或不銹鋼硬管 (不銹鋼 1.4571)
l 樣氣輸入和輸出處以及參比氣的氣連接:柱形氣室,管徑為6 mm 或1/4"
l 用于測量樣氣的流量計可安裝在前面面板上(可選)
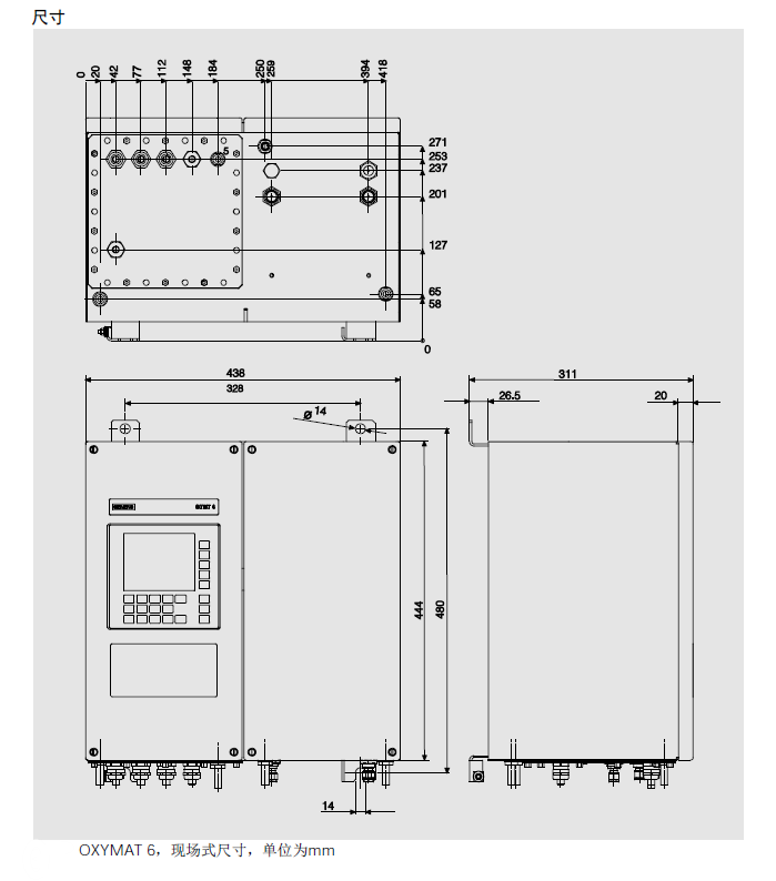
(2)現場式
l 兩扇門式機箱,分析儀的分析部分和電子部分做到氣密隔離
l 左,右機箱可分別吹掃
l 分析部分及其管線可最高加熱到130 °C ( 可選)
l 氣路和管線接頭材質為不銹鋼 ( 型號:1.4571) 或鉭
l 吹掃氣連接:管徑為10 mm 或3/8"
l 樣氣輸入和輸出處及參比氣的氣連接 :用于管徑為6mm 或1/4"的連接
(3)顯示屏和控制面板
l 大屏幕LCD 可同時顯示:
ü 測量值 ( 數字量和模擬量顯示)
ü 狀態欄
ü 量程
l 可通過菜單來調節液晶顯示器的對比度
l 持久的LED 背光顯示
l 可擦洗的帶有5個軟鍵的膜狀鍵盤
l 通過菜單操作可進行配置、功能測試、標定
l 用戶幫助以純文本格式顯示
l 可圖形在顯示濃度趨勢圖;時間間隔可設定
l 操作軟件采用兩種語言:德文/ 英文,英/ 法,法/ 英,西班牙/ 英,意大利/ 英
5、OXYMAT6型氧分析儀輸入和輸出
n 1 個模擬量輸出
n 2 個可編程模擬量輸入,例:用于校正交叉干擾或外部壓力傳感器
n 6 個可自由配置的二進制輸入,例:量程切換、處理來自樣品處理處的外部信號
n 6 個可自由配置的繼電器輸出,例:用于故障報警、超限報警、外部電磁閥等等
n 擴展后有8個附加的二進制輸入和8個繼電器輸出,例:可最多四種標定氣體來自標定)
6、OXYMAT6型氧分析儀主要特點
u 四個可自由編程量程,帶有零點偏移,所有量程都是線性的
u 所有量程帶零點補償
u 量程識別
u 電氣隔離信號輸出,輸出可選0/2/4 ~20 mA (也可反置)
u 自動切換量程或手動切換量程,也可遠程進行量程切換
u 儀器調節過程中可存儲測量值
u 時間常數在較寬范圍內可選(靜態/動態噪聲抑制)響應時間短
u 長時間漂移小
u 最多可選擇6個測量點 (可編程)
u 測量點識別
u 用內部壓力傳感器來校正樣氣壓力波動:波動范圍50~200kPa絕壓
u 也可連接外部壓力傳感器來校正樣氣壓力在300 kPa (絕壓) 內的波動
u 樣氣監測和 (或)參比氣監測(可選)
u 監控樣氣流量(對于Viton管型為可選)
u 參比氣接入壓力為200-400 kPa時進行參比氣監測 (可選)
u 量程自動標定參數化
u 基于NAMUR推薦的操作模式
u 兩級獨立密碼設置可避免無意或其它無相關權限人員的輸入
u 使用帶操作員提示功能的數字膜狀鍵盤可讓操作簡單化
u 客戶可按自己的要求選擇:
ü 工廠驗收
ü 標簽
ü 漂移記錄
ü 為測量O2 清洗
ü Kalrez 墊圈
u 由于電氣連接容易移走,所以分析儀更換方便
u 耐高腐蝕性氣體的樣氣室
u 分析部分帶流動型補償回路:在該補償回路中通過一種氣體可減小因樣氣和參比氣 密度相差太大時產生的振動偏差
7、關于OXYMAT6型氧分析儀產品圖片
1)設備圖片

2)設備菜單說明

3)原理圖

4)訂貨安裝產品尺寸圖

- ULTRAMAT/OXYMAT6紅外氣體分析儀2023-04-06
- OXYMAT61氧含量在線分析儀2016-08-19
- 西門子OXYMAT6型氧氣分析儀2016-04-04
- CALOMAT6E/F/Ex熱導系列分析儀2016-03-29
- LDS6激光氣體分析儀2016-03-29
- ULTRAMAT6紅外線氣體分析儀2016-03-29
- ULTRAMAT23多組份氣體分析儀2016-03-29
- SITRANS SL 原位激光分析儀2016-03-29
- 高爐煤氣OXYMAT6氧含量分析儀2016-03-29
- 轉爐煤氣OXYMAT6氧含量分析儀2016-03-29
- 煙氣排放連續監測系統2023-05-06
- 抽取式超低粉塵儀2023-05-06
- 氨逃逸在線監測設備2023-05-06
- 環境空氣非甲烷總烴連續監測系統2023-05-06
- 污染源VOCs監測系統2023-05-06
- 二氧化碳(CO2)排放連續監測系統2023-05-06
- 廢氣非甲烷總烴在線監測系統2022-04-06
- 冶金行業在線氣體分析系統2023-05-06
- 乙炔中氧氣含量分析系統2023-05-06
- 防爆型煙氣連續排放監測系統2023-05-06


當前位置:

需求溝通傾聽客戶需求,了解用戶使用環境和現場工況
方案設計根據現場實際工況,針對性出具解決方案
合同簽訂技術和商務規范確認,簽訂合作協議
產品制作選擇最優質的元器件,嚴格按照技術協議
調試安裝現場規范安裝,靜態動態調試,分析儀運行
售后服務后續維護,持續跟進,終身維修


在線咨詢1
咨詢熱線